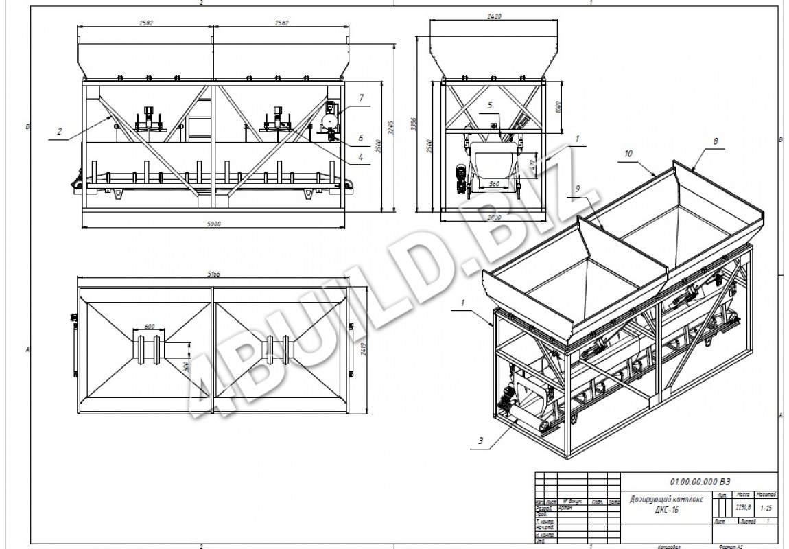
Дозуючий комплекс ДКC-16
- Наявність на складі: В наявності
Для монтажу дозуючого комплексу ДКС-16 не
потрібно виготовлення спеціального фундаменту, комплекс встановлюється на
рівний майданчик.
Два бункера встановлені на спеціальній
рамі. Кожен об'ємом 8 куб. метрів, має один секторний затвор, управління яким
здійснюється за допомогою встановленого на ньому пневмоциліндру «Camozzi»
(Італія). На кожному бункері встановлений вібромотор «OLI» (Італія) (всього
2 штуки).
Для забезпечення працездатності дозуючого
комплексу, він підключений до магістралі стиснутого повітря (компресора) з
робочим тиском не менше 0,6 мПа. Для установки компресора, в рамі дозуючого
комплексу вже передбачений майданчик для його розміщення. Це дозволяє закрити
компресор від впливу пилу від заводу і атмосферних опадів.
Дозатор інертних (конвеєр) підвішений під
бункерами на чотирьох високоточних тензодатчиках «Cas» (Південна Корея) загальною
вантажопідйомністю 8 тонн. Інертні матеріали (пісок, відсів, щебінь та інше)
подаються в бункера за допомогою вантажопідйомних механізмів. Для захисту від
попадання в бункера великих фракції на бункера можуть бути встановлені решітки
100 мм х 100 мм або інших розмірів (додатково).
Далі вся робота здійснюється за допомогою
пульта управління, в яку записуються потрібні рецепти і можна дозувати
матеріали як вже за чіткими рецептами натисканням однієї кнопки, так і
змінювати вагу окремих інертних. Далі відкривається затвор першого бункера і
подається основна доза першого компонента. Точна дозація здійснюється
автоматикою й імпульсним відкриттям затвора. За набором необхідної дози стежить
автоматика. При залипанні у подачі інертних з бункерів, короткочасно наводяться
в дію вібратори-струшувачі на необхідному бункері. У міру набору і зважування
автоматика включає привод конвеєра-дозатора і зважена доза інертних надходить в
приймальний бункер.
Далі в такій же послідовності здійснюється
подача і зважування наступного компонента з другого бункера. Після
розвантаження конвеєра дозатора-інертних, цикл дозації повторюється.
Для покращення антикорозійних
властивостей, що входить до складу обладнання, можливе виконання оцинкування окремих
вузлів комплексу (бортів).
Особливості установки:
- Не вимагає виготовлення фундаменту
- Перевозиться в 8 метровому вантажівці
- 2 бункера по 8 кубів кожен (загальний
обсяг 16 куб. метрів)
- Ширина завантаження 2,5 метри, висота
навантаження 3,2 метра
- Точна дозації - похибка не більше ± 1%
- Футерований привідний барабан
- Гарантія 2 роки
Детальніше про наше обладнання:
Базова комплектація дозуючих комплексів |
|
| Загальний обсяг бункерів, куб. м | 16 |
| Обсяг одного бункера, куб. м | 8 |
| Кількість бункерів, шт | 2 |
| Максимальна доза зважування, кг | до 1500 |
| Похибка дозування,% | -+1 |
| Тиск в пневмосистемі, мПа | 0,6 |
| Швидкість руху стрічки, м\с | 1,6 |
| Фракція заповнювача не більше, мм | 100 |
| Напруга живлення, В\Гц | 380\50 |
| Потужність встановлена, кВт | 6,1 |
| Барабан | Футерований |
| Вібратор "OLI" (Італія), шт | 2 |
| Затвор секторний (управління пневмоциліндрами), шт | 2 |
| Опорна рама, установка без фундаменту | + |
| Пневматика | Camozzi |
| Ролики | Interkrazz (Польща) |
| Тензодатчик "Cas" (Південна Корея), шт | 4 |
| Висота, мм | 3250 |
| Ширина, мм | 2500 |
| Довжина, мм | 6100 |
| Маса не більше, кг | 3200 |
Додатково до базової комплектації пропонуємо: |
|
| Решітки на секції бункерів | |
| Пульт управління (ручний) | |
| Пульт управління (автоматичний/напівавтоматичний/ручний) | |
| Компресор поршневий | |
| Оглядовий майданчик | |
| Кришки на бункера | |
| Реверс для конвеєра | |
- Примусовий бетонозмішувач СБ-1000
- Полуавтоматичний пульт за принципом «одна кнопка»
- Перевезення в 1 єврофури до місця установки
- Імпортні надійні комплектуючі
- Об'єм силоса 15 куб. м
- Товщина стінки конусу 4 мм/ бочки 3 мм
- Діаметр банки 2300 мм
- Діаметр труби закачки 102 мм
- Точна дозація, відхилення не більше -+1%
- Пряма подача в бетонозмішувач
- Сертифіковані бетонозмішувальні установки
- Транспортування у зібраному вигляді із змішувачем
- Точна дозація, відхилення не більше -+1%
- Пряма подача в бетонозмішувач
- Сертифіковані бетонозмішувальні установки
- Транспортування у зібраному вигляді із змішувачем
- Примусові бетонозмішувачі СБ-750 л готової суміші бетону
- Примусовий бетонозмішувач БП-150 л готової суміші бетону
- Напівавтоматичний пульт за принципом «одна кнопка»
- Економічний варіант
- Примусові бетонозмішувачі СБ-1000 л готової суміші бетону
- Напівавтоматичний пульт за принципом «одна кнопка»
- Економний варіант
- Імпортні надійні комплектуючі
- Висока вантажопідйомність
- Безпека використання
- Високі показники якості та надійності
- Можливість установки в будь-якому, найбільш зручному місці
- Потужний привід - мотор-редуктор 3 кВт
- Стрічковий конвеєр
- Не потребує виготовлення фундаменту
- Надійне обладнання і швидкі терміни виробництва
(1).png)

(1)-200x200.jpg)





-200x200.jpg)
