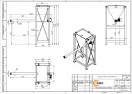
Бункер-живильник для кольорового пігменту
- Наявність на складі: В наявності
Бункер-живильник для кольорового пігменту від виробника 4BUILD
призначений для дозованої подачі кольору або інших сипучих матеріалів у
виробничі лінії. Конструкція забезпечує рівномірне подавання матеріалу без
утворення злежувань, що особливо важливо при роботі з пігментами.
Його переваги в тому що, у нього оптимальна подача кольору без
втрат і пилу. Вбудований шнековий живильник. Легке підключення до наявних ліній
виробництва. Надійність і довговічність завдяки промисловому виконанню.
Сфера застосування його використовується на заводах сухих будівельних
сумішей, виробництвах бруківки, дозаторних системах та у комплексах для
автоматизованої подачі білого цементу.
Основні
характеристики:
• Вмісткість
бункера — 100 кг;
• Вмонтований
шнековий живильник - 2 м;
•
Вібромотор
• Оптимальне
співвідношення продуктивності та енергоспоживання;
• Зручна система завантаження та вивантаження матеріалу.
Детальніше про бункер:
- Потужний привід - мотор-редуктор 0,75 кВт
- Стрічковий конвеєр з реверсом
- Не потребує виготовлення фундаменту
- Потужний привід - мотор-редуктор 3 кВт
- Напруга 220 В
- Не потребує виготовлення фундаменту
- Невеликі габарити
- Легка та проста конструкція
-Не потребує виготовлення фундаменту
-Надійне обладнання і швидкі терміни виробництва
- Не потребує виготовлення фундаменту
- Стрічковий конвеєр довжиною 8 м та шириною 600 мм
- Надійне обладнання і швидкі терміни виробництва
- Невеликі габарити
- Легка та проста конструкція
- Потужний привід – мотор-редуктор 5.5 кВт
- Стрічковий конвеєр
- Не потребує виготовлення фундаменту
- Надійне обладнання і швидкі терміни виробництва
(1).png)
dozatorbarvnika_page-0001-190x135.jpg)






