+38 (050) 055 46 31
Щодня 8:00 - 17:00
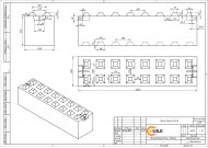
  • Металоформа Лего-блок 2 400 х 600 х 600 з бічними болтовими з'єднаннями

Металоформа Лего-блок 2 400 х 600 х 600 з бічними болтовими з'єднаннями

Модель: ЛЗБ 2400х600х600
  • Наявність на складі:   В наявності
86 200 грн

Металоформа призначена для виробництва лего-блоків із бічними болтовими з’єднаннями. Вона розроблена відповідно до державного стандарту для посилення критичної інфраструктури та фортифікаційних об’єктів. Будівництво за допомогою таких блоків не потребує використання бетонного розчину: система «шип-паз» забезпечує надійне з’єднання блоків між собою, підвищуючи стійкість конструкції, а металеві болтові кріплення додатково фіксують бічні частини. Металоформу можна виготовити як з дном, так і без нього.

Форма виготовлена з листової сталі товщиною 4 мм, що забезпечує ідеальну геометрію та високу стійкість до зносу. Конструкція металоформи оснащена провушинами для болтового з’єднання, які забезпечують надійну фіксацію елементів під час формування та спрощують процес розпалубки.

Процес виготовлення бетонного виробу за допомогою металоформи ЛЗБ 2400х600х600 від ТОВ «4БІЛД»:

  • Порожню металоформу розміщують на вібростолі або рівній поверхні.

  • Бетонний розчин поміщають у металоформу. Для приготування розчину пропонуємо придбати бетонозмішувач власного виробництва від ТОВ «4БІЛД».

  • Рідка маса ущільнюється глибинним вібромотором. У разі розміщення форми на вібростолі використання додаткового обладнання не потрібне.

Результатом є надійний, геометрично точний лего-блок, готовий до монтажу без застосування додаткових будівельних сумішей.

 Особливість використання металоформи ЛЗБ 2400х600х600:

  • Формує блоки на будь-якій рівній поверхні

  • Висока якість ущільнення бетонної суміші

  • Тривалий термін експлуатації

  • Довговічність та надійність

  • Висока точність прилягання одного виробу до іншого

 Детальніше про металоформу:


Базова комплектація лего-блоків
Довжина форми, мм 2 400
Ширина форми, мм 600
Висота форми, мм 600
Додатково до базової комплектації пропонуємо:
Днище
Металоформа Лего-блок 2 400 х 600 х 600 з бічними болтовими з'єднаннями
Металоформа Лего-блок 2 400 х 600 х 600 з бічними болтовими з'єднаннями
Написати відгук
  


Рекомендовані товари
Віброформа ФБС 24.3.6
- Габаритні розміри форми ФБС 2 380 х 300 х 580
- Формує блоки на будь-якій рівній поверхні
- Висока якість ущільнення бетонної суміші
- Тривалий термін експлуатації
Віброформа ФБС 24.5.6
- Габаритні розміри форми ФБС 2 380 х 500 х 580
- Формує блоки на будь-якій рівній поверхні
- Висока якість ущільнення бетонної суміші
- Тривалий термін експлуатації
Віброформи ФБС 24.6.6
- Габаритні розміри форми ФБС 2 380 х 600 х 580
- Формує блоки на будь-якій рівній поверхні
- Висока якість ущільнення бетонної суміші
- Тривалий термін експлуатації
Віброформа ФБС 24.4.6 (2)
- Габаритні розміри форми: 2 600 х 1 300 х 665
- Розміри блоків: 2 380 х 400 х 580
- Висока продуктивність завдяки миттєвій розпалубці
- Висока якість ущільнення бетонної суміші
- Тривалий термін експлуатації
Віброформа ФБС 24.3.6 (2)
- Габаритні розміри форми: 2 600 х 1 200 х 665
- Розміри блоків: 2 380 х 300 х 580
- Висока продуктивність
- Якісне ущільнення бетонної суміші
- Тривалий термін експлуатації
Металоформа Лего-блок 1 200 х 300 х 300
- Формує блоки на будь-якій рівній поверхні
- Висока якість ущільнення бетонної суміші
- Тривалий термін експлуатації
- Довговічність та надійність
- Висока точність прилягання одного виробу до іншого
Металоформа Лего-блок 1 600 х 400 х 400
- Формує блоки на будь-якій рівній поверхні
- Висока якість ущільнення бетонної суміші
- Тривалий термін експлуатації
- Довговічність та надійність
- Висока точність прилягання одного виробу до іншого
Металоформа Лего-блок 1 200 х 600 х 600 з бічними болтовими з'єднаннями
- Провушини для болтового з'єднання
- Ідеальна геометрія та висока стійкість до знесення.
- Виготовлено під Держ.Стандарт для фортифікаційних споруджень