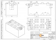
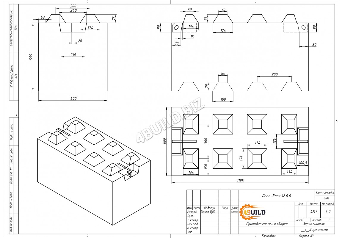
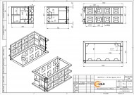
Металоформа Лего-блок 1 200 х 600 х 600 з бічними болтовими з'єднаннями
- Наявність на складі: В наявності
Металоформа призначена для виробництва лего-блоків із бічними болтовими з’єднаннями. Вона розроблена відповідно до державного стандарту для посилення критичної інфраструктури та фортифікаційних об’єктів. Будівництво за допомогою таких блоків не потребує використання бетонного розчину: система «шип-паз» забезпечує надійне з’єднання блоків між собою, підвищуючи стійкість конструкції, а металеві болтові кріплення додатково фіксують бічні частини. Металоформу можна виготовити як з дном, так і без нього.
Виготовляється форма з листової сталі товщиною 4 мм — конструкція забезпечує ідеальну геометрію та високу стійкість до зносу.
Процес формування полягає в укладанні готової бетонної суміші в металоформу, яка вібрується глибинним вібромотором або на вібростолі. Бетонна суміш розтікається та ущільнюється, після чого відбувається розпалубка форми. Після завершення циклу формування форма очищається від залишків бетону для подальшого зберігання або повторного використання.
Особливість використання металоформи ЛБ 1200х600х600:
Формує блоки на будь-якій рівній поверхні
Висока якість ущільнення бетонної суміші
Тривалий термін експлуатації
Довговічність та надійність
Висока точність прилягання одного виробу до іншого
Детальніше про металоформу:
- Висока якість ущільнення бетонної суміші
- Тривалий термін експлуатації
- Чудове співвідношення ціни і якості
- Висока якість ущільнення бетонної суміші
- Тривалий термін експлуатації
- Довговічність та надійність
- Висока точність прилягання одного виробу до іншого
- Висока якість ущільнення бетонної суміші
- Тривалий термін експлуатації
- Оптимальне співвідношення ціни і якості
- Висока якість ущільнення бетонної суміші
- Тривалий термін експлуатації
- Оптимальне співвідношення ціни і якості
- Висока якість ущільнення бетонної суміші
- Тривалий термін експлуатації
- Довговічність та надійність
- Висока точність прилягання одного виробу до іншого
- Висока якість ущільнення бетонної суміші
- Тривалий термін експлуатації
- Довговічність та надійність
- Висока точність прилягання одного виробу до іншого
- Висока якість ущільнення бетонної суміші
- Тривалий термін експлуатації
- Оптимальне співвідношення ціни і якості
- Висока якість ущільнення бетонної суміші
- Тривалий термін експлуатації
- Оптимальне співвідношення ціни і якості
- Ідеальна геометрія та висока стійкість до знесення.
- Виготовлено під Держ.Стандарт для фортифікаційних споруджень
(1).png)
legoforma12.6.6_page-0001-190x135.jpg)









