Стрічковий конвеєр L-подібний 8.2-500
Модель: ЛТ-L-8.2-500
- Наявність на складі: В наявності
Оплата і доставка
Контакти
Повернення, обмін та гарантії
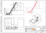
Стрічковий транспортер L-подібної конфігурації довжиною 8,2 м та шириною 500 мм призначений для транспортування щепи. Конструкція складається з горизонтальної частини (1,5 м) та похилого відрізка (6,7 м), що забезпечує плавну подачу матеріалу та стабільну роботу обладнання.
Опорна рама виготовлена з міцної сталі. Привід здійснюється електродвигуном потужністю 2,2 кВт. У верхній частині встановлено привідний футерований барабан діаметром 219 мм, а в нижній — натяжний гладкий барабан такого ж діаметра. Обидва барабани змонтовані на самоцентрувальних підшипниках у закритих корпусах, що підвищує надійність і довговічність конструкції.
Стрічка гладка з поперечними шевронами (крок 30 см, висота 5 см), має протиковзну поверхню та вулканізоване з’єднання (гарантія 5 років).
Борти: 200 мм на горизонтальній частині та 100 мм на похилій — виготовлені з чорного металу, запобігають втратам матеріалу.На похилій площині встановлені захисні кожухи для безпеки та захисту від зовнішніх впливів.
Особливості установки:
- Довжиною 8 метрів, шириною 400 мм
- Мотор-редуктор 2.2 кВт
- Ролики прямі
- Утримують ролики від сходу стрічки
- Надійне обладнання і швидкі терміни виробництва
Детальніше про обладнання:
Базова комплектація транспортерів |
|
| Довжина конвеєра, м | 8.2 |
| Ширина стрічки транспортерної, мм | 500 |
| Встановлена потужність, кВт | 2.2 |
| Швидкість руху стрічки, м\с | 1 |
| Продуктивність, тонн/год | 50 |
| Тип стрічки | шевронна |
| Кут встановлення конвеєра, градус | крутопохилий |
| Тип ролика | прямий |
| Висота вивантаження, мм | 2 500 |
| Тип продукту | штучний / шматковий / сипучий |
| Напруга живлення, В | 380 |
| Борти | 200 |
| Опора | + |
| Барабан, ф | 219 |
| Футерований барабан | привідний, ф219 |
Додатково до базової комплектації пропонуємо: |
|
| Тип стрічки | гладка / скребкова |
| Напруга живлення 220 В | |
| Частотник для регулювання швидкості+реверс | |
| Харчова стрічка | |
| Приймаючий бункер | |
| Вигрузна горловина | |
Написати відгук
Рекомендовані товари
-Шевронна стрічка шириною 300 мм, довжиною 4 метри
-Потужній привід-мотор –редуктор 1,5 кВт
-Шевронна стрічка для харчової промисловості
-Розробка і виготовлення
-Надійне обладнання і швидкі терміни виробництва
-Потужній привід-мотор –редуктор 1,5 кВт
-Шевронна стрічка для харчової промисловості
-Розробка і виготовлення
-Надійне обладнання і швидкі терміни виробництва
-Довжиною 3 метрів, шириною 250 мм
-Потужний привід - мотор-редуктор 1,5 кВт
-Ролики прямі
-Утримують ролики від сходу стрічки
-Надійне обладнання і швидкі терміни виробництва
-Потужний привід - мотор-редуктор 1,5 кВт
-Ролики прямі
-Утримують ролики від сходу стрічки
-Надійне обладнання і швидкі терміни виробництва
-Довжиною 3 метрів, шириною 250 мм
-Потужний привід - мотор-редуктор 1,5 кВт
-Ролики прямі
-Утримують ролики від сходу стрічки
-Надійне обладнання і швидкі терміни виробництва
-Потужний привід - мотор-редуктор 1,5 кВт
-Ролики прямі
-Утримують ролики від сходу стрічки
-Надійне обладнання і швидкі терміни виробництва
-Довжиною 21 метрів, шириною 200 мм
-Потужній привід-мотор –редуктор 5,5 кВт
-Прямі ролики
-Сигнал при запуску
-Утримуючі ролики від сходу стрічки
-Надійне обладнання і швидкі терміни виробництва
-Потужній привід-мотор –редуктор 5,5 кВт
-Прямі ролики
-Сигнал при запуску
-Утримуючі ролики від сходу стрічки
-Надійне обладнання і швидкі терміни виробництва
- Продуктивність 120 т/год
- Розвантаження зерновозів на конвеєр
- Висота вивантаження 3.8 м
- Виключає просипання матеріалів, що транспортуються
- Розвантаження зерновозів на конвеєр
- Висота вивантаження 3.8 м
- Виключає просипання матеріалів, що транспортуються
- Ширина: 2600мм
- Довжина: 1600-1800мм
- Висота: 1000 мм
- Довжина: 1600-1800мм
- Висота: 1000 мм
(1).png)






