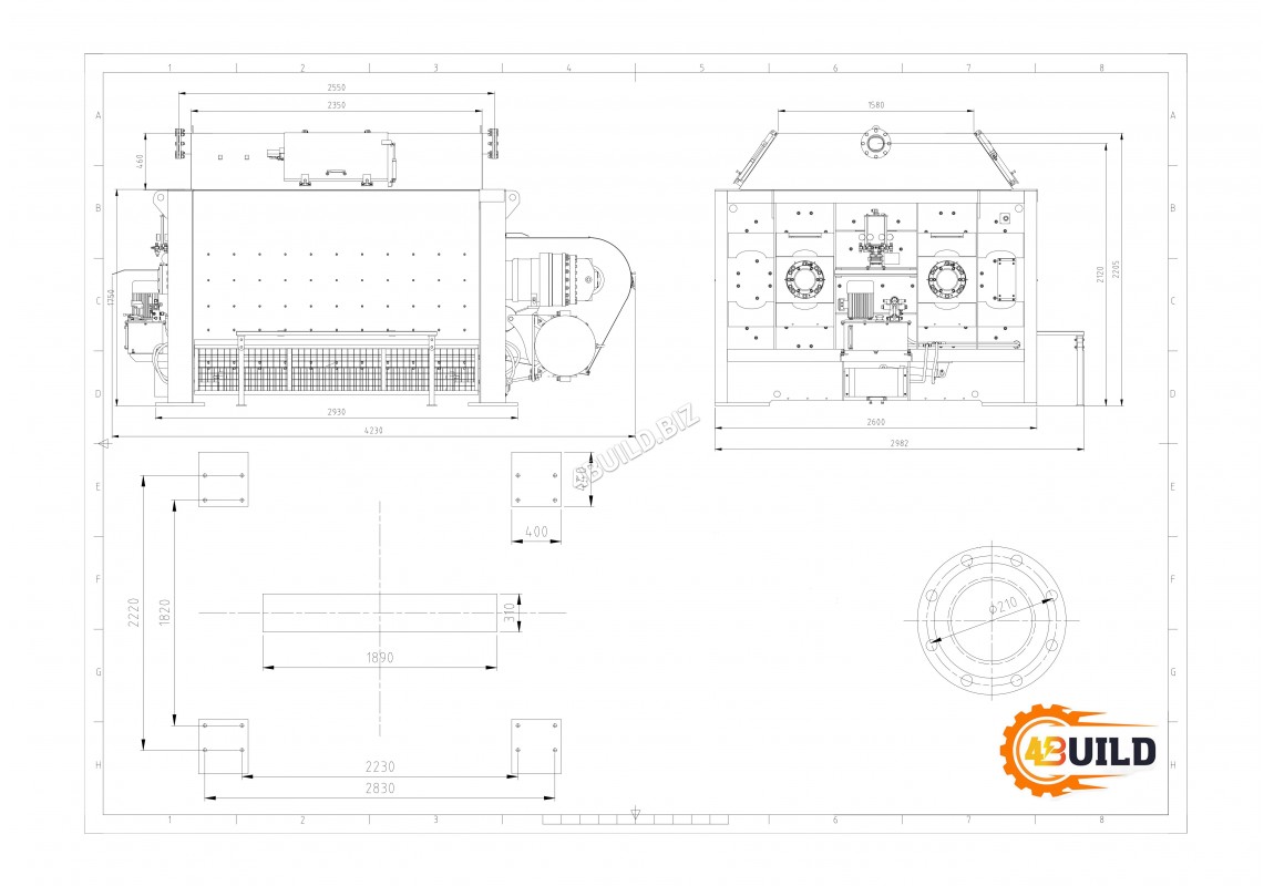
Двовальний бетонозмішувач БП-2Г-3500 (Туреччина)
- Наявність на складі: В наявності
Бетонозмішувач БП-2Г-3500 –
призначений для приготування бетону або розчину загальним об’ємом 5300
л та готової суміші 3500 л.
Продуктивність становить 134
куб.м./год готового розчину.
Змішуючі лопасті приводяться у рух
від 2 моторів потужністю по 55 кВт. Максимальна
фракція сипучого матеріалу для змішування становить до 120 мм.
Корпус двовального бетонозмішувача БП-2Г-3500 виготовлений
із матеріалів із зносостійкими та антикорозійними характеристиками та
виготовлений зі сталі типу Q235A як еквівалента сталі A36 товщиною 8
мм на повністю інтегрованому об’єкті. Передові австрійські
роботи IGM для зварювання включені в усі виробничі процеси,
від різання до зварювання. Загальна вага бетонозмішувача становить 9600
кг.
У даному змішувачі використано редуктор
власного виробництва ECSMT Makina Equipments. При його проектуванні
було враховано результат інтенсивних досліджень, проведених у лабораторіях
нашого заводу, та відгуків наших клієнтів. У результаті було створено редуктор
із передаточним числом 27, що відповідає усім міжнародним
критеріям. Можливе встановлення редуктора виробництва Bonfiglioli (є
додатковою опцією).
Ми надаємо велике значення внутрішній
зносостійкій конструкції, яка є одним із найважливіших компонентів змішувачів,
і використовуємо найміцніші матеріали. Нижні та бічні зносостійкі матеріали
мають твердість 55-60 HRC, і ми віддаємо перевагу чавуну
товщиною 20 мм з обов’язковим співвідношенням 26% хрому,
що є міцнішими та довговічнішими пластинами, ніж Ni-Hard 4 і HARDOX.
Час перемішування становить не
більше 30 секунд.
Змішувальні лопасті виконують важливу
функцію в процесі змішування бетону та розміщені на шестигранних валах, які
мають товщину 30 мм, а змішувальні лопаті – 38 мм, а
кращим є чавун із вмістом 26% хрому та твердістю 55-60
HRC. Додатковою опцією передбачено використання ущільнюючого
кільця.
Вивантаження готової суміші здійснюється
через вивантажувальний отвір, який закривається гідравлічними
дверцятами. Завдяки використанню гідравлічної системи дверцята
розвантаження можна відкрити під будь-яким кутом із функцією ручного
розвантаження.
Для зменшення сили тертя усіх рухомих
частин передбачено автоматичну систему змащування. Подача мастила
до чотирьох кінцях вала здійснюється за допомогою чотирьох сердечників
насоса. Немає необхідності використовувати клапан-роздільник потоку,
уникаючи блокування клапана-роздільника потоку, щоб зменшити навантаження на
технічне обслуговування.
У разі помилки в одному з сердечників інші
сердечники продовжують закачувати мастило в змішувач. Централізована
автоматична система змащування постійно подає лабіринтові ущільнення змішувача
з датчиками на кожне ущільнення, щоб гарантувати, що користувач буде
проінформований про несправність.
Для забезпечення безпеки при роботі із
даним змішувачем передбачено кнопку аварійної зупинки.
Двовальні бетонозмішувачі є обладнанням,
яке використовується для змішування компонентів бетону з метою отримання
однорідної та якісної суміші. Основне призначення двовальних бетонозмішувачів
включає:
- Змішування складових
бетону: двовальні бетонозмішувачі використовуються для
змішування цементу, піску, води та каміння в єдину, однорідну суміш, яка є
основною складовою бетону.
- Забезпечення якісного
змішування: забезпечують якісне змішування всіх компонентів, що
гарантує однорідність та стабільність характеристик бетону.
- Забезпечення
ефективності виробництва: їх використання дозволяє підвищити
ефективність виробництва бетону, зменшити час змішування та забезпечити
стабільність процесу виробництва.
- Автоматизація процесу: деякі двовальні бетонозмішувачі можуть бути інтегровані в автоматизовані
виробничі лінії, що спрощує і автоматизує процес виробництва бетону.
- Забезпечення безпеки та
стабільності: використання цих змішувачів сприяє
уникненню великих варіацій у складі та якості бетону, забезпечуючи безпеку та
стабільність виробництва.
- Можливість роботи з
різними типами бетону: двовальні бетонозмішувачі можуть
використовуватися для змішування різних типів бетону.
Детальніше про двовальний бетонозмішувач в комплексі з бетонним заводом:
Базова комплектація бетонозмішувача |
|
| Обсяг загальний, літрів | 5300 |
| Обсяг готового замісу по бетону, л | 3500 |
| Продуктивність, куб. м/год | 134 |
| Кількість циклів/год (при використанні в автомат. лініях) | 60 |
| Фракція заповнювача не більше, мм | 120 |
| Напруга живлення, В | 380 |
| Загальна встановлена потужність, кВт | 110 |
| Маса не більше, кг | 9600 |
Додатково до базової комплектації пропонуємо: |
|
| Дозатор 3-х компонентів (води, цементу, хім.добавки) | |
| Дозуючий комплекс інертних | |
| Пульт управління (автоматичний/напівавтоматичний/ручний) | |
| Силос для цементу | |
| Розтарювач біг-бегів | |
| Естакада (підставка) під бетонозмішувач | |
- 150 л готового замісу бетону
- Підходить для будь-яких типів суміші
- 3-х ступіньчастий редуктор промислового призначення
- 4 змінні лопасті
- Проста надійна конструкція
- Потужний привід 3 кВт
- Значна економія при обслуговуванні установки
- Продуктивність 70-108 куб. метрів/год бетону
- Працездатність системи в будь-яких умовах;
- Висока якість змішування різноструктурних матеріалів.
- Тривалий термін експлуатації
- Підходить для будь-яких типів бетону
- Однорідне змішування різних компонентів
- Тривалий термін експлуатації
- Підходить для будь-яких типів бетону
- Однорідне змішування різних компонентів
- Час перемішування 3 – 5 хв
- У процесі змішування суміш не розподіляється на фракції
- Виготовляються зі спеціального зносостійкого матеріалу
(1).png)





